霍山县2025年规划管理委员会第6次会议批准项目规划设计方案批后公告
2025年12月10日,霍山县2025年规划管理委员会第6次会议审议批准了霍山职业学校就业创业产教融合共享实训基地项目规划设计调整方案等十个项目议题。依据《中华人民共和国城乡规划法》《关于城乡规划公开公示的规定》及规委会会议纪要等相关规定,现对此十个项目规划设计方案进行批后公告。
一、霍山职业学校就业创业产教融合共享实训基地项目规划设计调整方案公示
1、项目概况:位于城区高桥湾片区高桥湾路以南、文昌南路以北,用地面积约120亩。本次方案调整内容为:1、本项目用地面积由约120亩调整为约231.4亩;2、为满足旅游实训客房培训数量要求,旅游实训楼建筑面积由约6970平方米调整为约8034平方米(建筑尺寸由53.9米×44.8米调整为53.78米×45.6米、原15-20轴交K-E轴尺寸由9.35米×16米调整为12-17轴交G-N轴尺寸9.55米×18.3米等),汽修实训基地及机械加工实训楼建筑面积由约9132平方米调整为约8386平方米(建筑尺寸由70.2米×58.2米调整为61.8米×58.2米)。调整后该项目规划总建筑面积增加约317平方米,原有建筑层数不变。
2、调整后规划总平面图见附图。

二、职工健身中心项目规划设计方案公示
1、项目概况:位于城区幽芳路以东、淠河东路以北,用地面积约5.1亩,规划新建1栋1层体育馆,建筑面积约1513平方米,容积率0.44,建筑密度44.3%,绿地率29.42%。
2、规划总平面图见附图。

三、勤善堂(大别山)康养中心项目规划设计方案公示
1、项目概况:位于黑石渡镇清潭沟村河沿组,用地面积约3亩,规划新建1栋4层(局部3层)康养中心,规划建筑面积约4614平方米,计容建筑面积约7287平方米,容积率3.61,建筑密度76.3%,绿地率3.8%。
2、规划总平面图见附图。

四、安徽乐滋味食品科技有限公司厂区规划设计调整方案公示
1、项目概况:位于县经济开发区红源大道与同心路交叉口西南角,用地面积约18.8亩。现因生产工艺和运输问题,需对厂区规划进行局部调整,主要调整内容如下:2#厂房建筑尺寸由72米×32米调整为70.2米×32米。调整后厂区规划总建筑面积约1.1万平方米,计容总建筑面积约1.7万平方米,容积率1.35,建筑系数49.7%,绿地率9.5%。
2、调整后规划总平面图见附图。

五、霍山恒鑫竹木制品有限公司厂区规划设计调整方案公示
1、项目概况:位于县经济开发区迎宾大道与铜锣寨路交叉口以东,用地面积约80.2亩。现因生产工艺调整,需对厂区规划进行局部调整,主要调整内容如下:1、3#厂房屋顶右侧炮楼尺寸由10米×8.7米调整为50.6米×8.7米;2、原规划设计3#厂房、4#厂房及连廊建筑高度由21.2米调整为23.4米。调整后厂区规划总建筑面积约4.6万平方米,计容总建筑面积约6.8万平方米,容积率1.28,建筑系数40.8%,绿地率8%。
2、调整后规划总平面图及效果图见附图。


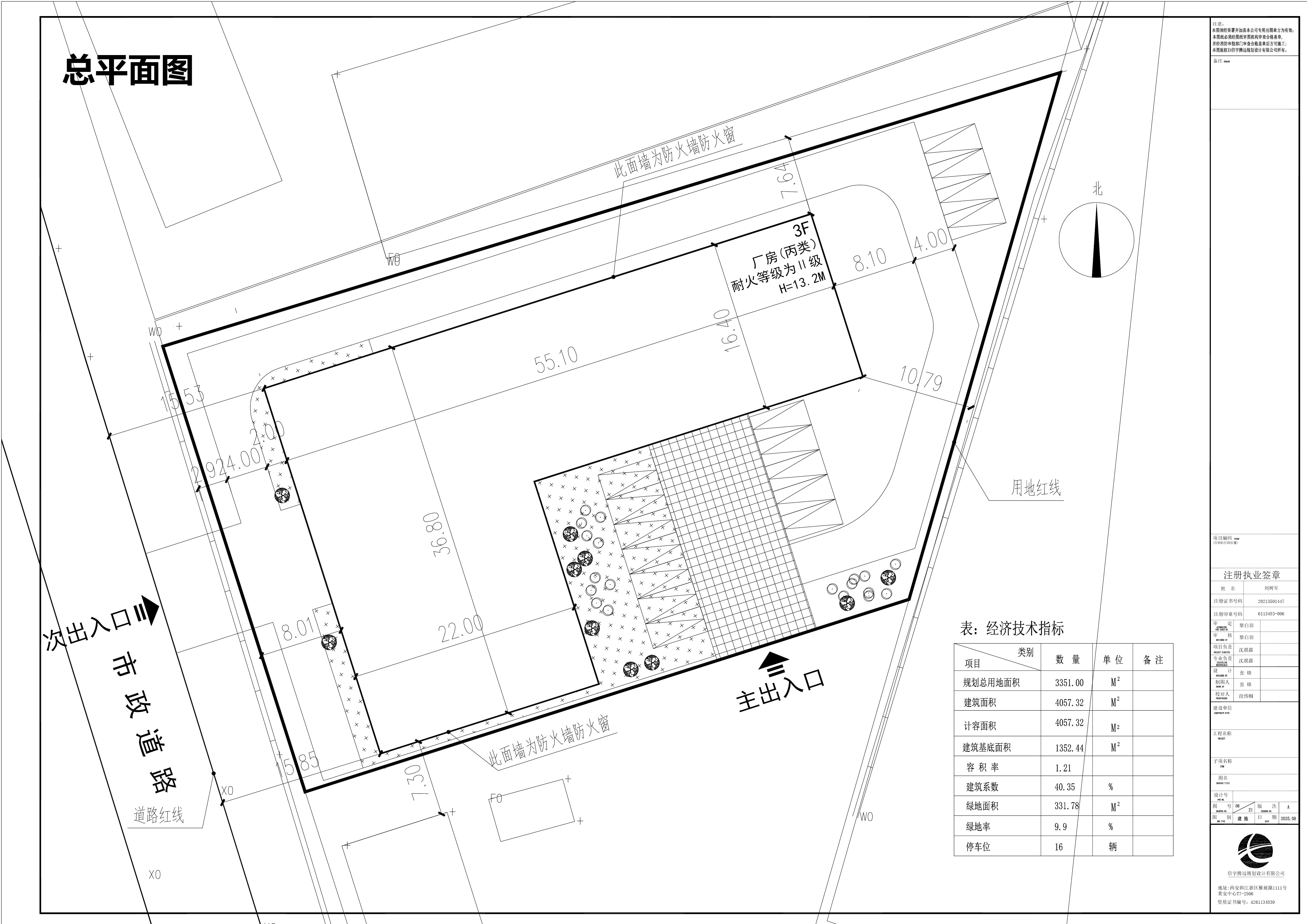
六、霍山县富民竹业有限公司厂区规划设计方案公示
1、项目概况:位于诸佛庵镇俊卿社区俊卿组,用地面积约5亩,规划新建1栋3层厂房,规划建筑面积约4058平方米,计容建筑面积约4058平方米,容积率1.21,建筑系数40.4%,绿地率9.9%。
2、规划总平面图及效果图见附图。


七、安徽赛尔新材料科技有限公司厂区规划设计调整方案公示
1、项目概况:位于县经济开发区高科路以东、桃源河路以北,用地面积约34.4亩。现因生产工艺及设备更新,需对厂区规划进行局部调整,主要调整内容如下:1、取消办公楼;2、将3#车间南移约34米,建筑尺寸由50米×60米调整为62米×45米;3、在3#车间北侧新增1栋1层原料库储存仓库。调整后厂区规划总建筑面积约1.2万平方米,计容总建筑面积约2.3万平方米,容积率1.02,建筑系数52.1%,绿地率8%。
2、调整后规划总平面图见附图。

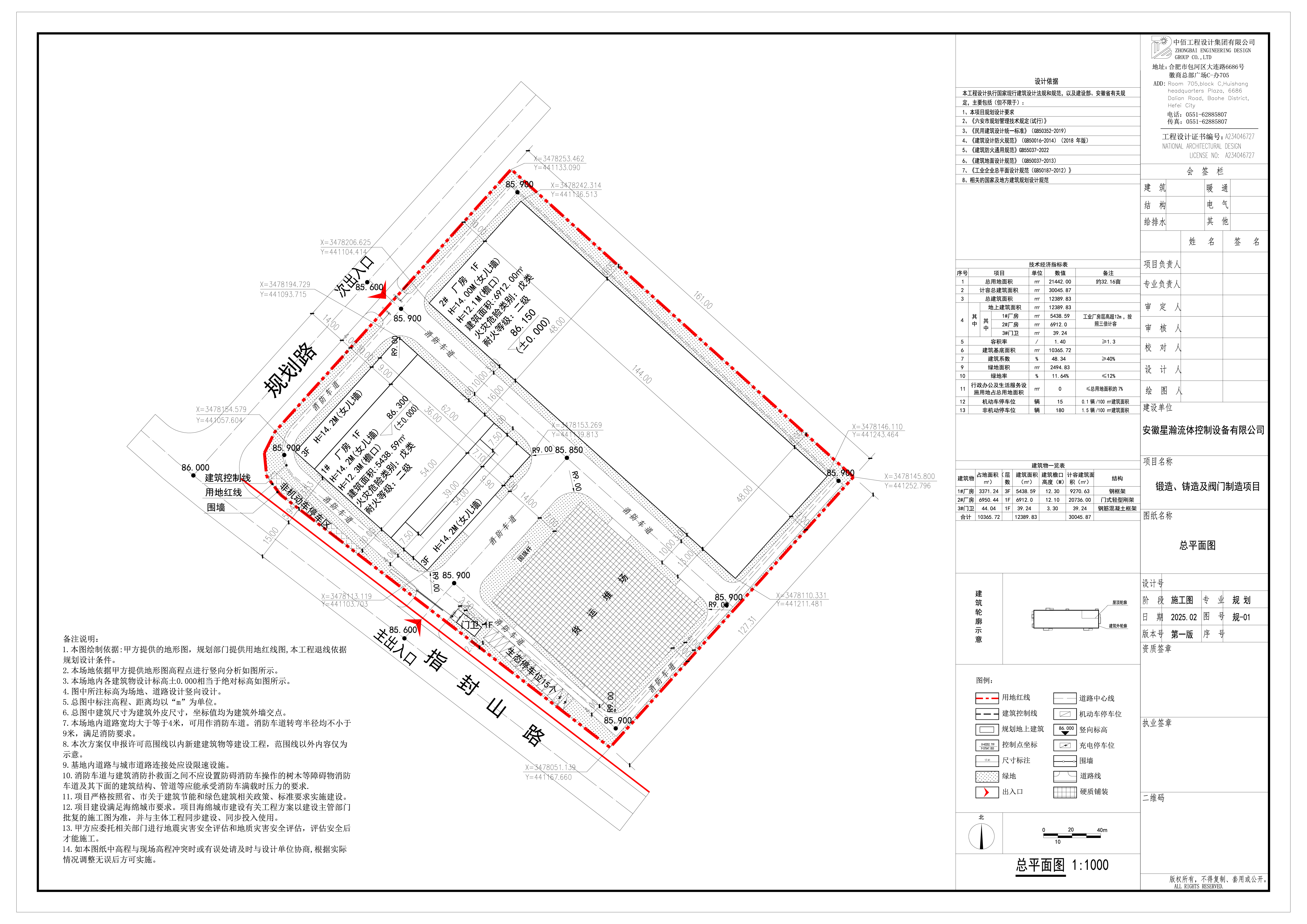
八、安徽星瀚流体控制设备有限公司厂区规划设计调整方案公示
1、项目概况:位于县经济开发区迎驾大道以南、指封山路以东,用地面积约32.2亩。因设备工艺布局局部调整,需对厂区规划进行局部调整,主要调整内容如下:1、取消1#厂房上人屋面楼梯,改为不上人屋面;2、将2#厂房中间敞开雨棚调整为封闭车间,并将2#厂房与东侧围墙距离由8米调整为6米。调整后厂区规划总建筑面积约1.2万平方米,计容总建筑面积约3万平方米,容积率1.4,建筑系数48.3%,绿地率11.6%。
2、调整后规划总平面图及效果图见附图。


九、佛子岭中心供电所项目规划设计方案公示
1、项目概况:位于镇区晾甲路南侧、悦民小区5#楼西侧,用地面积约5.5亩,规划新建1栋3层业务用房,规划总建筑面积约1100平方米,容积率0.3,建筑密度12.9%,绿地率20%,机动车停车位15个。
2、规划总平面图及效果图见附图。


十、霍山县佛子岭镇FZL01地块详细规划公示
1、项目概况:为积极做好镇旅游配套产业发展以及集镇配套提升建设,进一步拓展旅游服务功能和综合服务功能,合理盘活存量土地,大力推进旅游业提质增效,优化集镇开发建设,基于符合佛子岭镇国土空间总体规划,编制完成佛子岭镇FZL01地块详细规划。该地块位于佛子岭镇城镇开发范围内,迎佛路两侧,包括5块用地,用地总面积为2.61公顷。其中1号用地为交通场站用地,面积0.19公顷,规划用于佛子岭集镇农行南侧停车场项目;2号用地为商业用地,面积0.67公顷,规划用于迎驾九龙商务酒店项目;3号用地为商业用地,面积0.57公顷,规划用于迎驾君临酒店项目;4号用地为公园绿地,面积0.84公顷,规划用于佛子岭镇晾甲公园项目;5号用地为体育场馆用地,面积0.34公顷,规划用于佛子岭集镇全民健身活动广场项目。
2、地块图则见附图。

专题首页
政策解读
回应关切
办事服务
依申请公开
皖公网安备 34152502000002号